OPZIONATO

Splendida villa stile inglese con parco
Rif : VRMA1097

Prezzo su richiesta

Descrizione

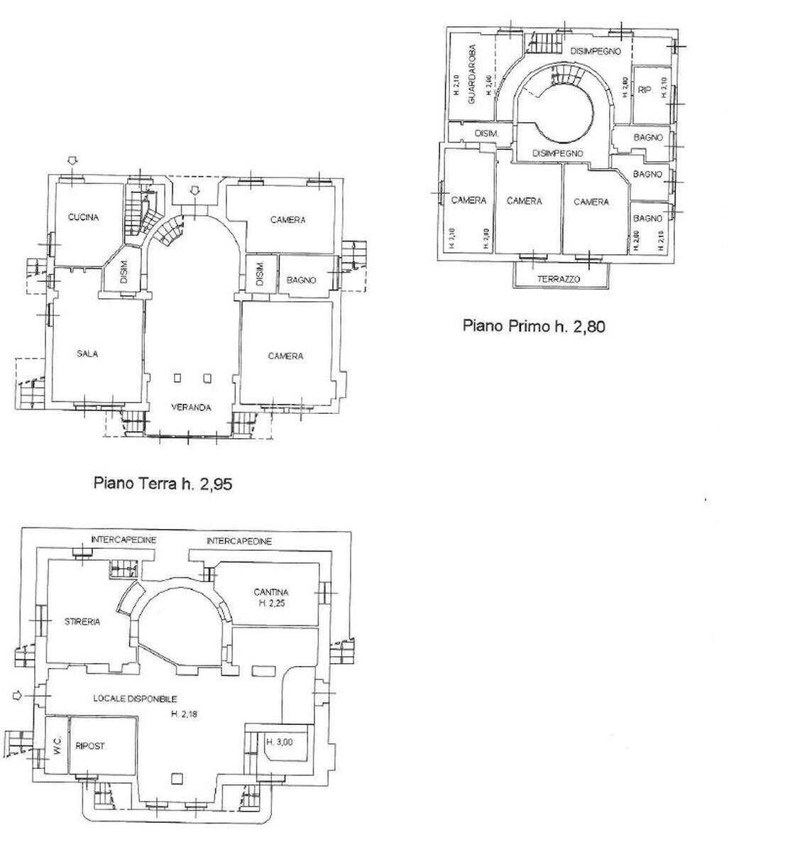
A 10 minuti in auto da Bellagio, in zona collinare soleggiata e nel cuore del paese di Magreglio proponiamo splendida villa stile inglese del 1920 ristrutturata negli anni 70 e conservata in ottimo stato. La villa è immersa in 2600 mq di giardino ed è posta su tre livelli. Il piano seminterrato è occupato da un ampio locale hobby, una stireria, bagno, cameretta e caratteristica cantina vini, il piano terra invece da ingresso, zona living composta da salotto con zona tv e veranda chiusa da serramenti vetrati, zona pranzo con antico camino con panche bi-laterali poggiato su mattonelle di cotto lombardo e arricchito da un passavivande di collegamento con la cucina abitabile retrostante, disimpegno, due camere, un bagno e terrazza circostante tra cui un bellissimo pergolato di uva americana con tavolo in cemento. Il piano primo mansardato si raggiunge da un ampio scalone circolare di accesso oltre ad una seconda scala di servizio ed è composta da tre camere doppie, due camere singole, disimpegno, tre bagni e un balcone. Alla proprietà, che gode di ottima privacy, eccellente esposizione solare e di un giardino molto curato e ben piantumato, si accede da un cancello in ferro battuto e un bel viale di ingresso.
Un garage doppio e comoda area parcheggio scoperta completano la proprietà.

Contatta l'agenzia

* Campi obbligatori

Obbligatorio !
!
Obbligatorio
!
Numero di telefono non valido
Obbligatorio !
Email non valida
Obbligatorio !
!

Consenso del cliente al trattamento dati da parte di La Reale Domus srl. Il cliente dichiara di aver preso visione dell'informativa privacy di La Reale Domus ed esprime il suo libero ed informato consenso al trattamento dei propri dati personali per le finalità ivi indicate.

Obbligatorio!
Si prega di compilare tutti i campi richiesti!

Dettagli

Anno: 1920
Anno ristrutturazione: 2003
Classe energetica: G
Ipe (kWh/m² anno): 358,33
Livelli: 3
Numero locali: 16
Camere da letto: 8
Bagni: 3
Soggiorno/salotto: 1
Cucina: abitabile
Serramenti interni: vetro/legno
Serramenti esterni: tapparelle in legno
Parcheggio: box
Condizione immobile: buono
Caratteristica stabile: buono
Finiture: buone
m² giardino privato: 2 600
Riscaldamento: autonomo
Tipo riscaldamento: gasolio
Vista: panoramica
Balcone:
Superfice balconi: 5 m²
Terrazzo:

Open space
Ingresso
Cantina / ripostiglio
Veranda
Cancello elettrico
Citofono