Restaurant business
Ref : VC1100

€ 430 000

Description

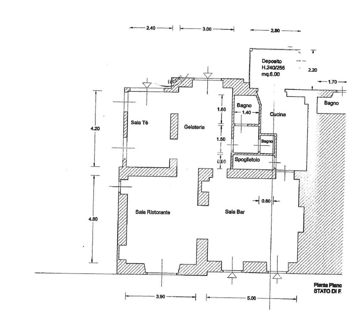
Cernobbio, located a few steps from the lake promenade and with easy access from Switzerland and the motorway, is this restaurant business that has been operating for over 15 years. The restaurant enjoys high visibility, is totally arranged at street level and has an internal surface area of about 100 sqm for approx. 35 covers, as well as a large outdoor area for an additional 50 covers. It consists of an entrance hall, bar area, two dining rooms, kitchen with storage room, changing room, and restrooms. The outdoor seating area enjoys excellent privacy in a location close to the municipal gardens. This is an ideal solution for those looking for a ready-to-use investment with excellent goodwill in a high-traffic tourist area.
 
 

Contact us

* Mandatory fields

Mandatory field !
!
Mandatory field
!
Not valid phone number!
Mandatory field !
Not valid email!
Mandatory field !
!

Customer's consent to the processing of data by Reale Domus srl. The customer declares to have read the privacy note and expresses its free and informed consent to the processing of personal data for the purposes specified therein.

Mandatory field!
Please, fill all mandatory fields!

Details

Year: 1952
Year of renovation: 2010
Floor: ground
Levels: 1
Windows: glass/wood
Building conditions: good
Building characteristics: good
Finishes: good
Private garden: yes
Heating: autonomous
Heating type: methane

Entrance